Application
Special characteristics
Nominal sizes
Variants
Parts and characteristics
Materials and surfaces
Standards and guidelines
Maintenance
Functional description
Staircase swirl diffusers in air conditioning systems create a swirl to supply air to rooms. The resulting airflow induces high levels of room air, thereby rapidly reducing the airflow velocity and the temperature difference between supply air and room air. Staircase swirl diffusers supply the air directly to the occupied zone and even to individual room occupants. The result is mixed flow ventilation for comfort zones and an excellent air quality in the occupied zone.
Type SDRF staircase swirl diffusers have fixed blades. Air discharge parallel to the installation surface. The supply air to room air temperature difference may range from –6 to +6 K.
Nominal sizes | 1, 2, 3, 4, 5, 6 outlets |
Minimum volume flow rate | 2 – 12 l/s or 7 – 43 m³/h |
Maximum volume flow rate | 5 – 25 l/s or 18 – 90 m³/h |
Supply air to room air temperature difference | –6 to +6 K |
Quick sizing tables provide a good overview of the volume flow rates and corresponding sound power levels and differential pressures.
SDRF, sound power level and total differential pressure
1 | 2 | 7 | 6 | <15 |
1 | 3 | 11 | 14 | 24 |
1 | 4 | 14 | 25 | 33 |
1 | 5 | 18 | 39 | 39 |
2 | 5 | 18 | 9 | 22 |
2 | 7 | 25 | 18 | 31 |
2 | 9 | 32 | 30 | 38 |
2 | 10 | 36 | 37 | 41 |
3 | 6 | 22 | 7 | 19 |
3 | 8 | 29 | 12 | 26 |
3 | 12 | 43 | 27 | 37 |
3 | 14 | 50 | 37 | 41 |
4 | 8 | 29 | 7 | <15 |
4 | 12 | 43 | 15 | 29 |
4 | 14 | 50 | 20 | 33 |
4 | 18 | 65 | 33 | 41 |
5 | 10 | 36 | 6 | 17 |
5 | 12 | 43 | 9 | 22 |
5 | 16 | 58 | 16 | 31 |
5 | 20 | 72 | 25 | 38 |
6 | 12 | 43 | 6 | <15 |
6 | 16 | 58 | 10 | 23 |
6 | 20 | 72 | 16 | 31 |
6 | 25 | 90 | 25 | 38 |
Sizing example
Given data
V = 15 l/s (54 m3/h)
Staircase swirl diffuser
Maximum sound power level 35 dB(A)
Quick sizing
Type SD
Variants: SD-Q-LQ, SD-Q-LR
Type SDRF
Nominal sizes: SDRF/4, SDRF/5
Selected: SDRF/4
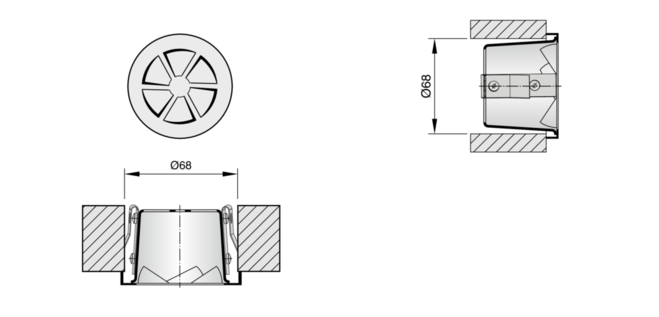
Staircase swirl diffusers with rectangular or circular diffuser face and fixed air control blades for swirling supply air discharge creating high induction levels. For supply air only; for comfort conditioning applications. For installation into the risers of steps.
Ready-to-install component which consists of a diffuser face with up to six outlets. Each outlet with radially arranged fixed blades and a cup with damper element.
Diffuser face with fixing screws (concealed with decorative caps) or with spring clip fixing.
Sound power level of the air-regenerated noise measured according to EN ISO 5135.
Special characteristics
Materials and surfaces
Technical data
Sizing data
Air-regenerated noise
This specification text describes the general properties of the product. Texts for variants can be generated with our Easy Product Finder design programme.
CLASSIC colour
Gloss levelOrder example: SDRF-K/3/P1-RAL9010
| Type | SDRF – Staircase swirl diffuser |
| Fixing | with spring clips |
| Number of outlets | 3 |
| Exposed surface | powder-coated, RAL 9010 (pure white) |
Nomenclature
LWA [dB(A)]
A-weighted sound power level of air-regenerated noise
V [m³/h] and [l/s]
Volume flow rate
Δtz [K]
Supply air to room air temperature difference, i.e. supply air temperature minus room temperature
Δpt [Pa]
Total differential pressure
Aeff [m²]
Effective air discharge area
All sound power levels are based on 1 pW.
Share page
Recommend this page
Recommend this page by sending a link by mail.
Share page
Thank you for your recommendation!
Your recommendation has been sent and should arrive shortly.
Contact
We are here for you
Please specify your message and type of request
Tel.: +49 (0)2845 / 202-0 | Fax: +49 (0)2845/202-265
Contact
Thank you for your message!
Your message is send and will be processed shortly.
Our department for Service-Requests will contact you asap.
For general question regarding products or services you can also call:
Tel.: +49 (0)2845 / 202-0 | Fax: +49 (0)2845/202-265
Contact
We are here for you
Please specify your message and type of request
Tel.: +49 (0)2845 / 202-0 | Fax: +49 (0)2845/202-265
Contact
Thank you for your message!
Your message is send and will be processed shortly.
Our department for Service-Requests will contact you asap.
For general question regarding products or services you can also call:
Tel.: +49 (0)2845 / 202-0 | Fax: +49 (0)2845/202-265